Igloo Dome - Glass Igloos for Sale
Product Inquiry
Product Introduction
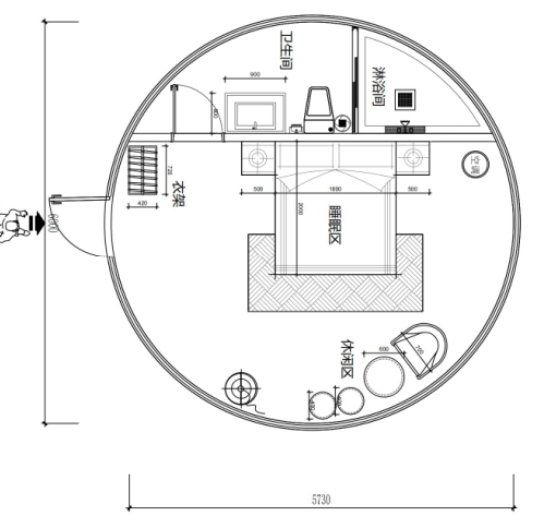
What Is a Glass Igloo Tent?
A glass igloo is a luxury geodesic dome tent constructed with aluminum alloy framing and tempered glass panels, offering a 360-degree view of the surrounding nature. Designed for immersive glamping, it allows guests to stargaze, birdwatch, or relax under the sky—all from the comfort of a warm, secure space.
These glass igloo domes are not only beautiful but also built for real-world use, with high structural strength, thermal insulation, and privacy-enhancing features.
Previous Article:
Smart Glass Igloo DomeProduct Inquiry





